
SCHOUWEILER
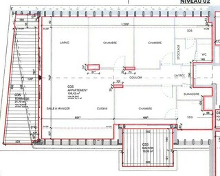
Magnifique appartement n° 05 (lot 035) d'une superficie de +/- 109,42 m2 avec 1 balcon de +/- 10,93 m2 et une terrasse de +/- 21,70 m2 au 2ème étage de la nouvelle résidence “RIALTO”, proche des transports en commun et de toutes les commodités, cette résidence bénéficie d'un emplacement privilégié pour un quotidien pratique et agréable.
Il se compose : d'un hall d'entrée desservant une buanderie, un espace rangement, un WC séparé, une salle de bain, 3 chambres à coucher dont 1 disposant de sa propre salle de douche avec WC et accès sur le balcon, une cuisine équipée ouverte sur un vaste living donnant sur la grande terrasse.
Possibilité de louer un emplacement de parking intérieur à partir de 150- € par mois.
Disponibilité : avril 2026
***
Beautiful apartment no. 05 (lot 035) with a living area of approximately 109.42 m², located on the 2nd floor of the new residence "RIALTO" . Close to public transport and all local amenities, the residence enjoys a prime location, offering a convenient and pleasant daily lifestyle.
The apartment consists of an entrance hall leading to a laundry room, a storage area, a separate toilet, a bathroom and three bedrooms, one of which features its own shower room with toilet and access to the balcony.
A fully equipped open-plan kitchen opens onto a spacious living area with access to the large terrace.
Outdoor spaces include:
1 balcony of approx. 10.93 m²
1 terrace of approx. 21.70 m²
Indoor parking space available as an option from €150/month
Availability: April 2026