
SCHOUWEILER
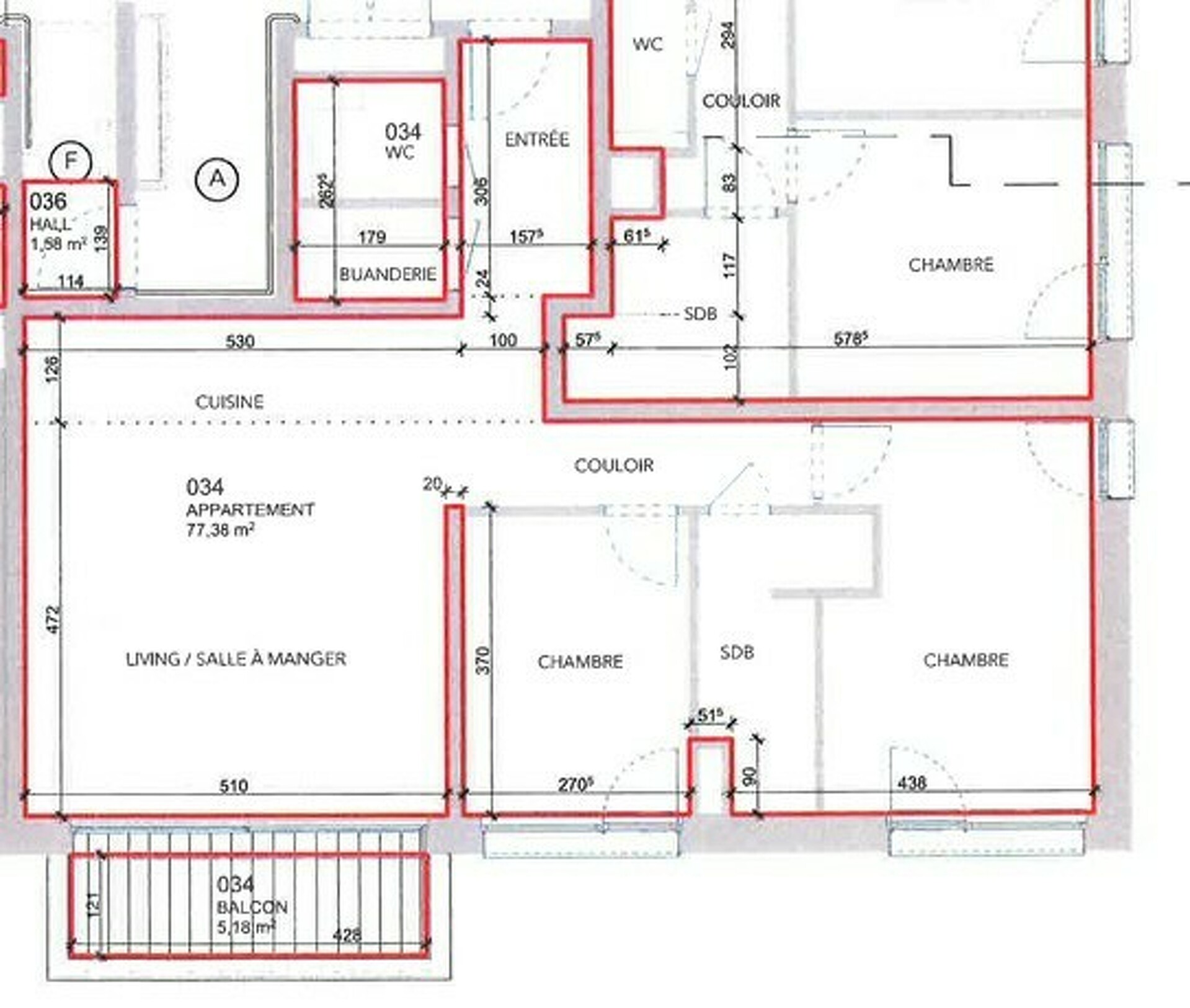
Bel appartement n° 07 (lot 034) d'une superficie de +/- 77,38 m2 avec 1 balcon de +/- 5,18 m2 au 2ème étage de la nouvelle résidence “RIALTO”, proche des transports en commun et de toutes les commodités, cette résidence bénéficie d'un emplacement privilégié pour un quotidien pratique et agréable.
Il se compose : d'un WC séparé, d'une buanderie, d'une cuisine équipée ouverte sur un vaste living avec accès au balcon, d'un hall de nuit desservant 2 chambres à coucher et une salle de bain avec WC.
Possibilité de louer un emplacement de parking intérieur à partir de 150- € par mois.
Disponibilité : avril 2026
***
Beautiful apartment no. 07 (lot 034) with a surface area of approx. 77.38 sqm, located on the 2nd floor of the new residence “RIALTO”. Ideally situated close to public transport and all amenities, offering a convenient and pleasant living environment.
The apartment consists of:
a separate toilet
a laundry room
a fully equipped open-plan kitchen leading to a spacious and bright living area with access to a balcony of approx. 5.18 sqm
a night hall
2 bedrooms
a bathroom with toilet
Indoor parking space available as an option from €150 per month
Availability: April 2026